Planos

TORRE 2

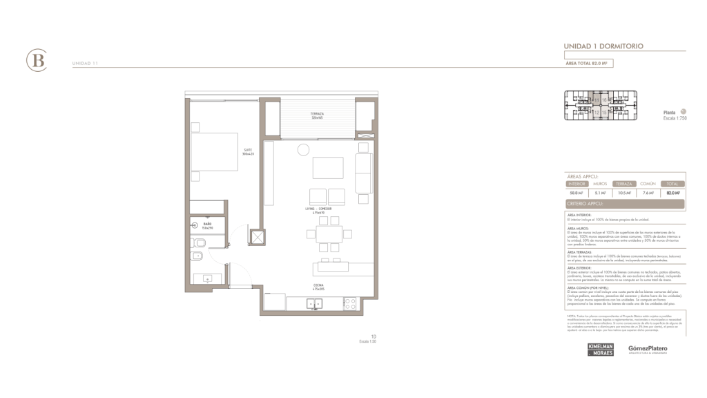
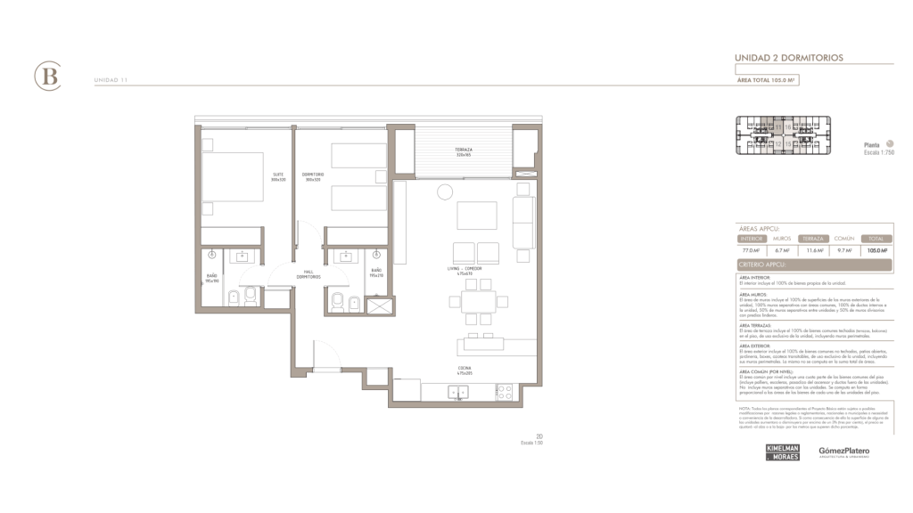
Apartamentos con 1, 2 o 3 dormitorios desde 82.0m2 a 139.2 m2.

Duplex de 2 o 3 dormitorios desde 148.7m2 a 274.5m2.

Áreas:

INTERIOR MUROS TERRAZA COMÚN TOTAL
58.8m2 5.1m2 10.5m2 7.6m2 82.0m2
Descargar Plano

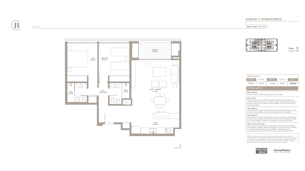
Áreas:

INTERIOR MUROS TERRAZA COMÚN TOTAL
77.0m2 6.7m2 11.6m2 9.7m2 105.0m2
Descargar Plano

Áreas:

INTERIOR MUROS TERRAZA COMÚN TOTAL
83.8m2 5.7m2 16.0m2 10.8m2 116.3m2
Descargar Plano

Área total: 148.7 m2

Áreas planta – Baja:

INTERIOR MUROS TERRAZA COMÚN TOTAL
56.5m2 4.7m2 13.8m2 7.7m2 82.7m2

Áreas planta – Alta:

INTERIOR MUROS TERRAZA COMÚN TOTAL
59.4m2 4.3m2 2.3m2 — m2 66.0m2
Descargar Plano

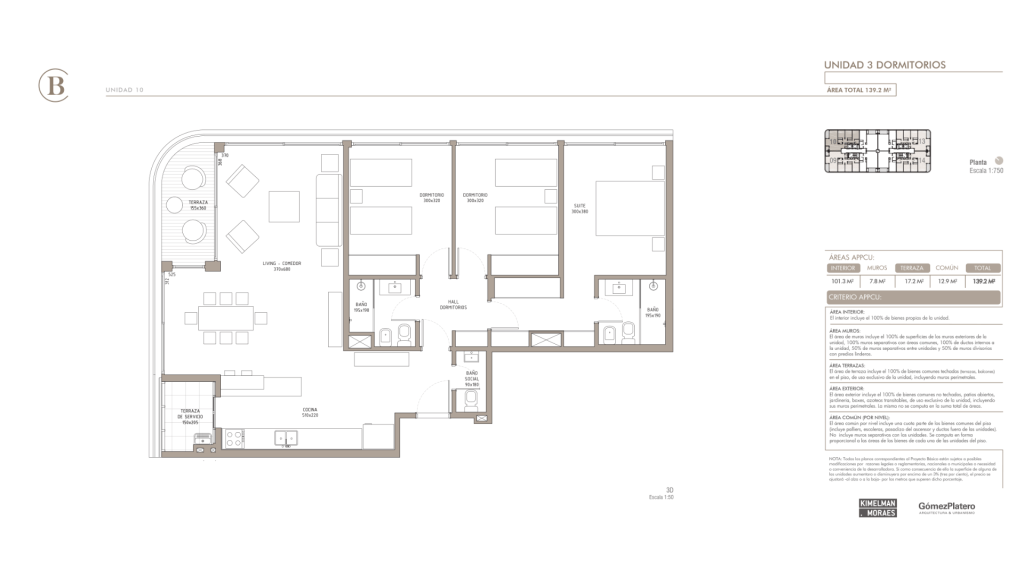
Áreas:

INTERIOR MUROS TERRAZA COMÚN TOTAL
101.3m2 7.8m2 17.2m2 12.9m2 139.2m2
Descargar Plano

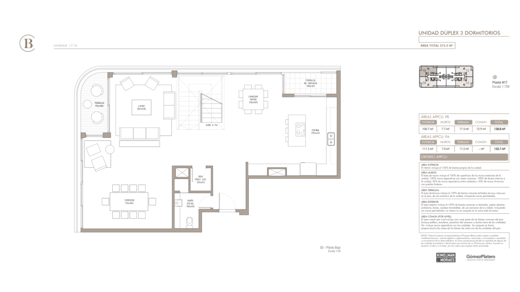
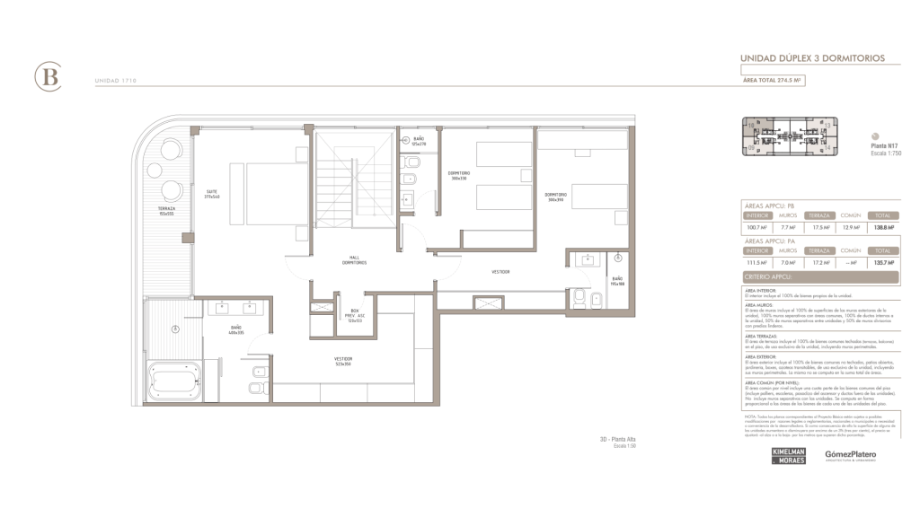
Áreas total: 274.5m2

Áreas planta – Baja:

INTERIOR MUROS TERRAZA COMÚN TOTAL
100.7m2 7.7m2 17.5m2 12.9m2 138.8m2
Descargar Plano - Planta Baja

Áreas planta – Alta:

INTERIOR MUROS TERRAZA COMÚN TOTAL
115.5m2 7.0m2 17.2m2 — m2 135.7m2
Descargar Plano - Planta Alta

TORRE 1

Apartamentos con 2 dormitorios de 112,75 m2.

Pent-house 4 dormitorios de 325,79 m2.

Áreas:

INTERIOR MUROS TERRAZA COMÚN TOTAL
80.79m2 6.68m2 14.49m2 10.79m2 112.75m2
Descargar plano

Área total: 325,79 m2

Áreas planta – Baja:

INTERIOR MUROS TERRAZA COMÚN TOTAL
95.96m2 9.16m2 16.37m2 11.15m2 132.64m2
Descargar Plano - Planta Baja

Áreas planta – Alta:

INTERIOR MUROS TERRAZA COMÚN TOTAL
157.47m2 12.29m2 23.39m2 – m2 193.15m2
Descargar Plano - Planta Alta

Vilas

CRITERIO APPCU

  • ÁREA INTERIOR:

El área interior incluye el 100% de bienes propios de la unidad.

 

  • ÁREA MUROS:

El área muros incluye el 100% de superficie de los muros exteriores de la unidad, 100% de muros interiores de la unidad, 100% de muros separativos con áreas comunes, 100% de ductos internos a la unidad, 50% de muros separativos entre unidades y 50% de muros divisorios con predios linderos.

 

  • ÁREA TERRAZA:

El área de terraza incluye el 100% de bienes comunes techados (terrazas, balcones) en el piso, de uso exclusivo de la unidad, incluyendo sus muros perimetrales.

  • ÁREA EXTERIOR:

El área exterior incluye el 100% de bienes comunes no techados patios abiertos, jardines, boxes, azoteas transitables, de uso exclusivo de
la unidad, incluyendo sus muros perimetrales.

 

  • ÁREA COMÚN (POR NIVEL):

El área común por nivel incluye una cuota parte de los bienes comunes del piso (incluye palliers, escaleras, pasadizo del ascensor y ductos fuera de la unidad). No incluye muros separativos con las unidades. Se computa en forma proporcional a las áreas de los bienes propios de cada una de las unidades del piso.